




Realisierung: 2016 – 2019
Ort: Norderstraße, 25980 Westerland-Sylt
Bauherr*in: Gmyrek Grundbesitz GmbH
Planungsleistung: LP 1–5
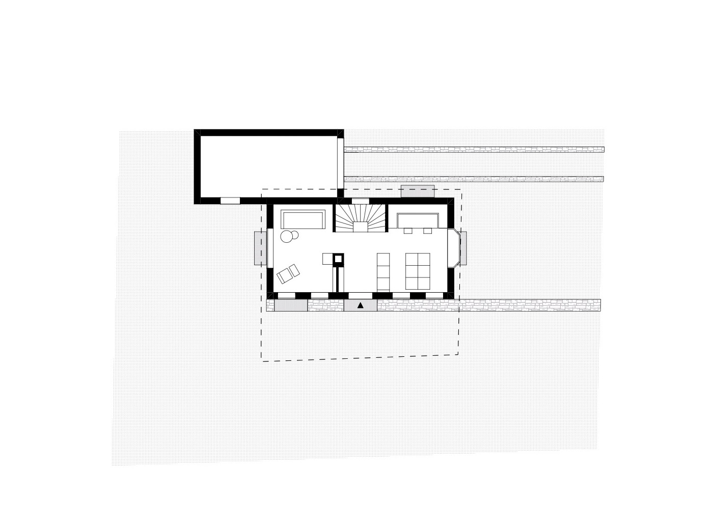
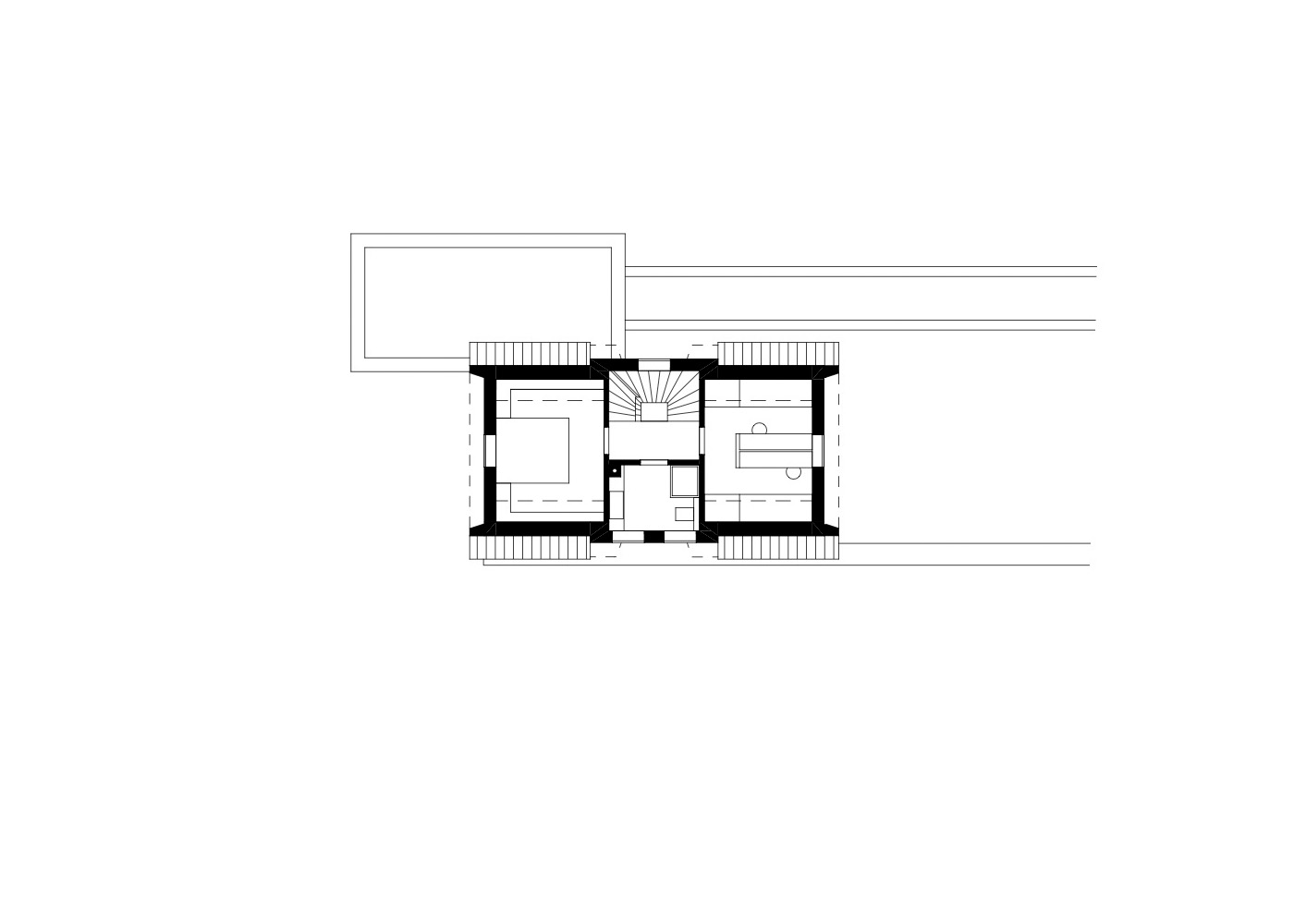
Größe gesamt: 171 m² BGF
Entwurf eines Einfamilienhauses für einen privaten Bauherren auf Sylt. Das Haus orientiert sich in Fassadentypologie und Kubatur an den klassischen Friesenhäusern der Insel. Da auf dem Grundstück aus Brandschutz- und gestalterischen Gründen keine Reetdeckung möglich ist, werden Trauf-, Ortgang- und Sturzdetails modern interpretiert und in Betonfertigteilen ausgeführt.