








Realisierung: 2011 – 2013
Ort: Helgolandstraße, Braunschweig
Bauherr*in: Privat
Planungsleistung: LP 1-8
Größe: Neubau 180 m2 BGF, Bestand 310 m2 BGF
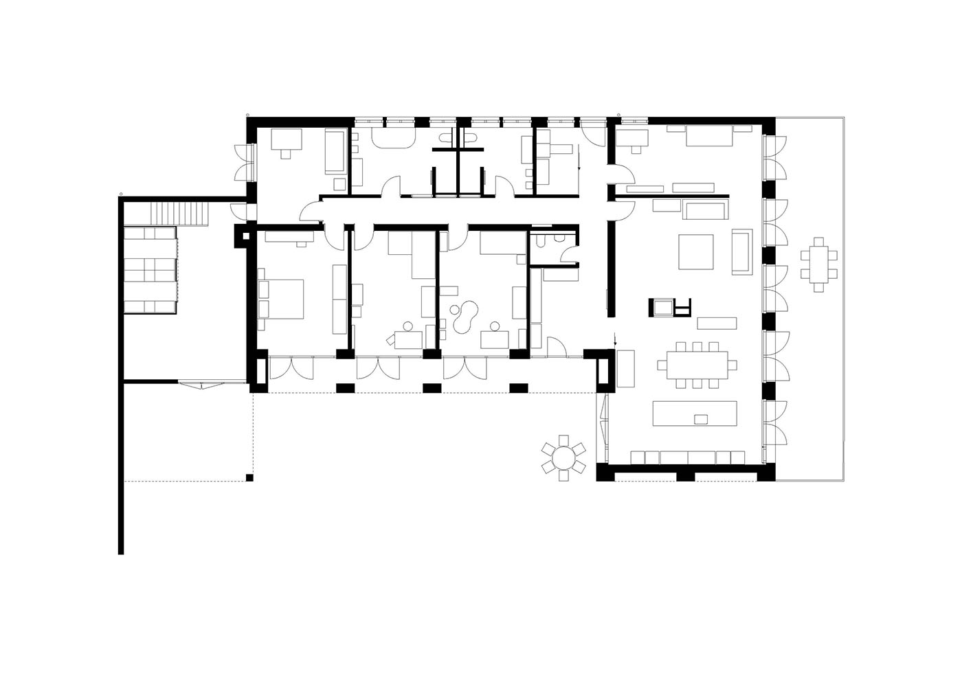
Umbau und Erweiterung eines Einfamilienhauses im Norden von Braunschweig
Das Wohnhaus aus dem Jahr 1966 wurde umfassend erweitert und umgebaut. Unser Entwurf verdoppelt die Wohnfläche und orientiert sich mit der Erweiterung zum großen Gartenbereich hin. Die Fassade des Neubaus wird durch massive Stützen und Träger in Sichtbeton gegliedert, die sich auf der Eingangsseite des Bestandsgebäudes als Arkade und Sonnenschutz fortsetzen. Auf diese Weise werden die beiden Baukörper gestalterisch miteinander vereint und ein Übergangsbereich zwischen außen und innen geschaffen.