








Realisierung: 2019 – 2021
Ort: Berlin-Dahlem
Größe: 1.285 m² BGF
Entwurfsverfasser: studio2020 Matzat Henkel
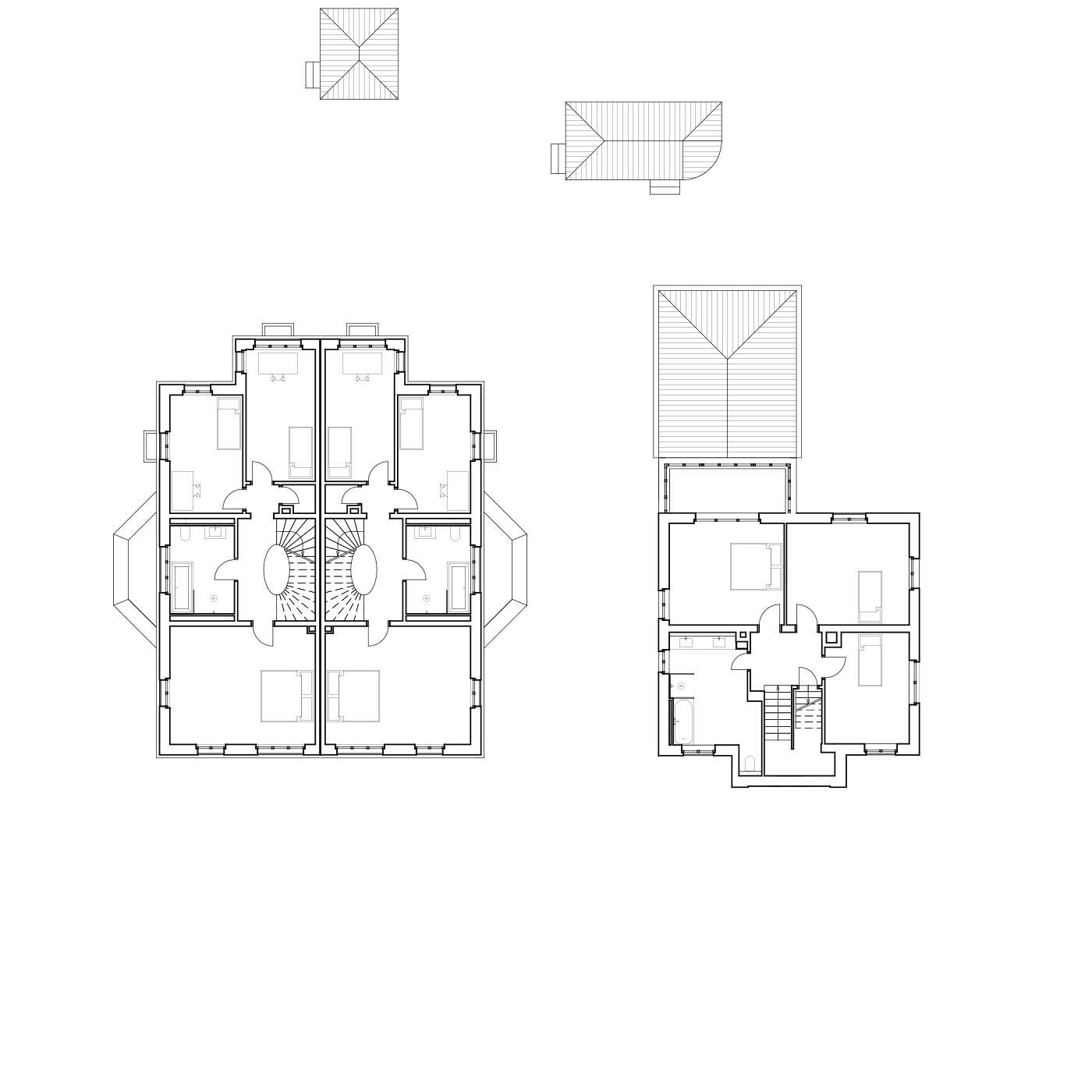
Ein Ensemble aus zwei um die Jahrhundertwende entstandenen Villen wird wieder dem ursprünglichen Charakter der Villensiedlung in Berlin Dahlem gerecht. Ein Gebäude wird saniert, das andere aufgrund von Baufälligkeit und Rückbau von nachträglichen Anbauten aus den 30er und 80er Jahren durch einen Neubau ersetzt. Die sachliche Formensprache des Doppelhauses fügt sich wie selbstverständlich in den Kontext ein. Die Übernahme von Elementen englischer Villen, wie die Baywindows, oder auch die horizontalen, an die 20er Jahre erinnernden Profilierungen der Fassade, lassen das Haus dennoch eigenständig wirken. Großzügige Treppenräume mit ovalem Treppenauge bilden das Zentrum der klassisch geschnittenen Grundrisse.