





Realisierung: 2012 – 2014
Ort: Edenstraße 39, 30163 Hannover
Bauherr*in: Gmyrek Grundbesitz GmbH
Planungsleistung: LP 1-4
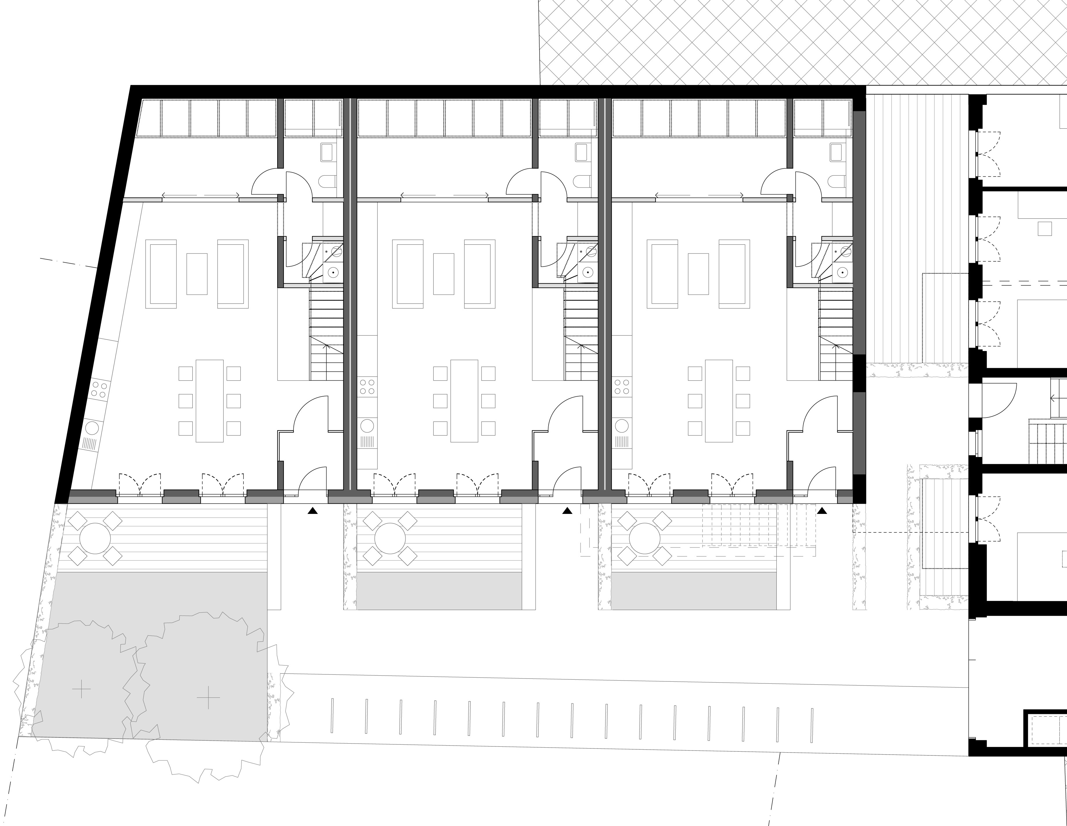
Umbau und Umnutzung eines Hofgebäudes (Gemeindesaal) und von Erdgeschossräumen im Vorderhaus zu Wohnungen
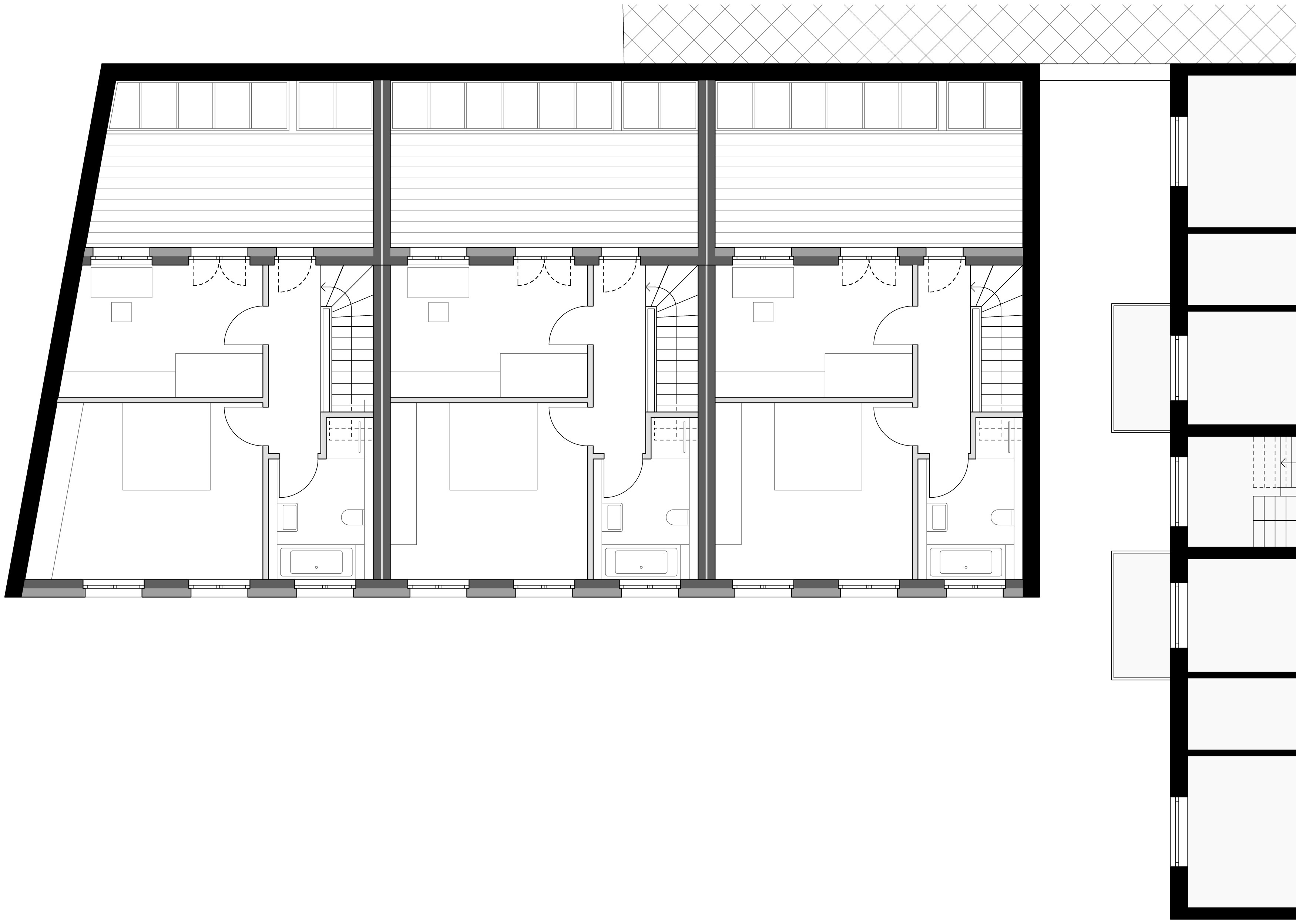
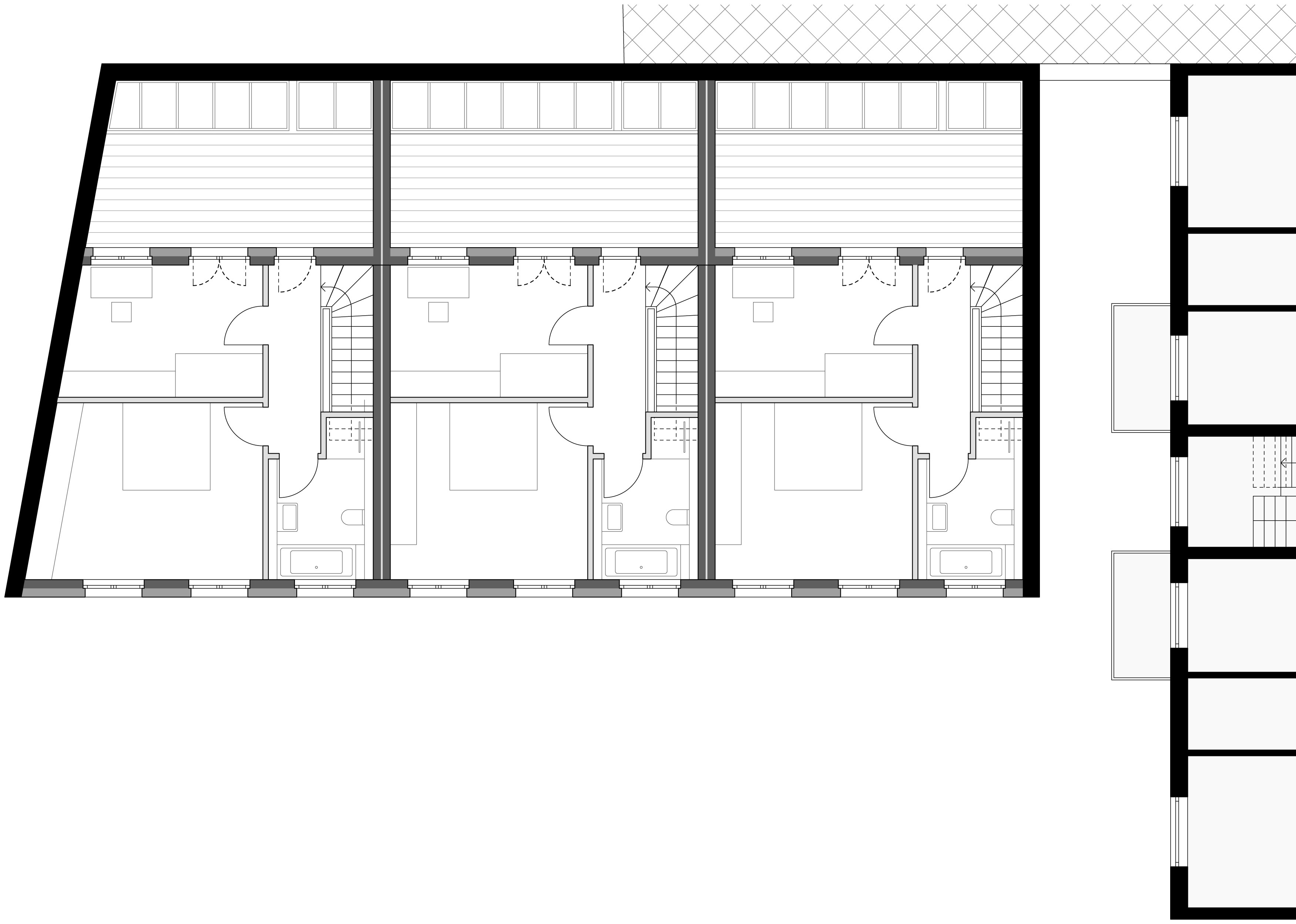
Hofgebäude: Bei dem Bestandsgebäude handelt es sich um einen ehemaligen Gemeindesaal für Gottesdienste der Markuskirche, ca. 1914 erbaut und 1958 umgebaut. Der Baukörper wird in drei zweigeschossige Wohneinheiten unterteilt. Das Obergeschoss wird als Staffelgeschoss ausgebildet, so dass für jede Wohnung eine großzügige Terrasse entsteht. Diese bietet zudem Platz für ein großes Oberlicht, das die darunterliegenden Räume natürlich belichtet.
Vorderhaus: Durch den geplanten Umbau und die Umnutzung des Erdgeschosses in zwei Wohneinheiten wird dieser Bereich wieder klar definiert und dient als Durchgang zu den drei geplanten Wohneinheiten im Hof. Die beiden neu entstehenden Wohnungen werden durch den vorgelagerten Eingangsbereich des Treppenhauses erschlossen.