






Realisierung: 2016 – 2019
Ort: Norderstraße, 25980 Westerland-Sylt
Bauherr*in: Gmyrek Grundbesitz GmbH
Planungsleistung: LP 1-5
Größe gesamt: 171 m² BGF
Planungspartner*in: studio2020 Matzat Henkel
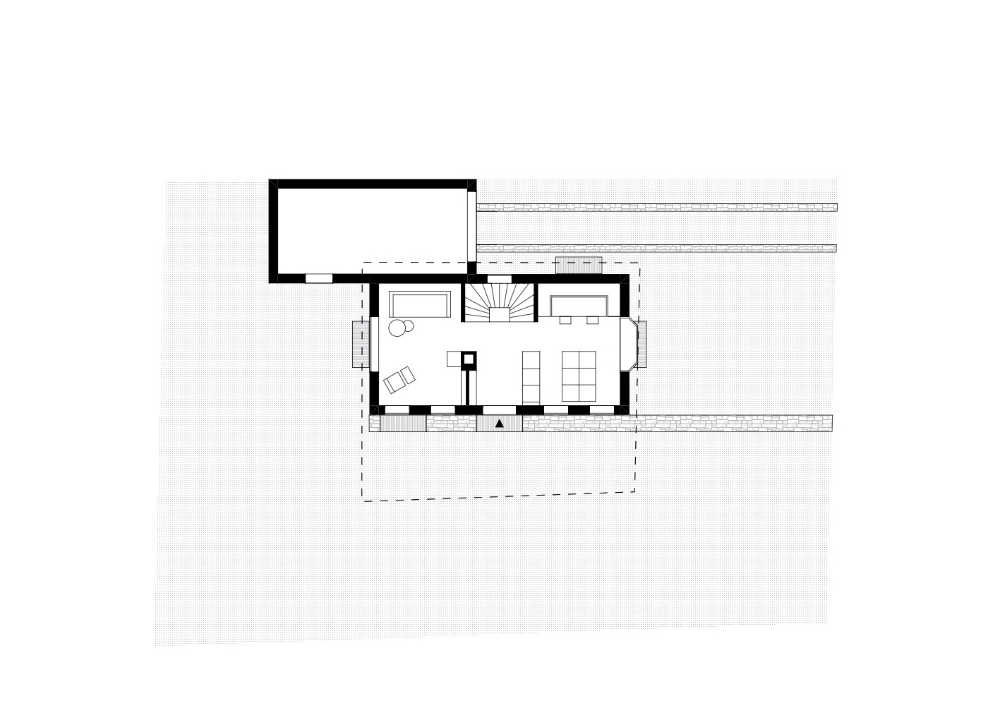
Entwurf eines Einfamilienhauses für einen privaten Bauherren auf Sylt. Das Haus orientiert sich von Fassadentypologie und Kubatur an den klassischen Friesenhäusern auf Sylt. Da auf dem Grundstück aus Brandschutzbestimmungen und gestalterischen Gründen keine Reetdeckung angebracht ist, werden die Trauf-, Ortgang und Sturzdetails modern interpretiert und in Betonfertigteilen ausgeführt.