




Realisierung: 2004 – 2006
Ort: Allerstraße, Gifhorn-Winkel
Bauherr*in: Privat
Planungsleistung: LP 1-8
Größe: 500 m² BGF
Neubau eines Einfamilienhauses
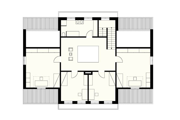
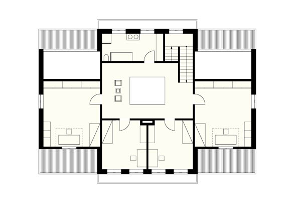
Das Haus ist mittig auf einer Anhöhe am Waldrand platziert und bietet einen freien Blick auf die südlich gelegene Wiesenlandschaft. Das Gebäude entspricht der klassischen Villentypologie mit einem Haupt- und zwei Nebenbaukörpern. Im Zentrum des kreuzförmig angelegten Grundrisses befindet sich eine zweigeschossige von oben natürlich belichtete Halle mit Kamin. Die Wohnräume im Erdgeschoß sind miteinander durch eine Enfilade zu einer großzügigen Raumfolge verbunden. Die farblich geputzte Fassade ist durch gleich große französische Fenster gegliedert. Diese bieten Austrittsmöglichkeiten ins Freie auch im Obergeschoß.