





Realisierung: 2010 – 2013
Ort: Am Fallersleber Tore 12, 38100 Braunschweig
Bauherr*in: Gmyrek Real Estate GmbH & Co. KG
Planungsleistung: LP 1-4, in Teilen 5
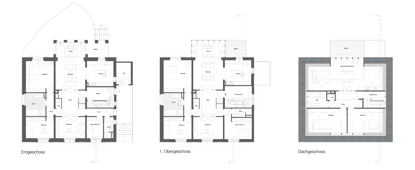
Umbau, Dachgeschossausbau
Das Wohngebäude aus der Gründerzeit erhält einen Anbau, mit dem die Wohnfläche der zwei vorhandenen Wohnungen vergrößert wird. Im Dach entsteht durch die bauliche Maßnahme eine weitere Wohnung. Zusätzliche entstehen für jede Wohnung ein Balkon bzw. eine Loggia.