







Realisierungswettbewerb im Zuge eines VgV Verfahrens: 4 Preis, 2024
Entwurfsverfasser: Arge Jordi Keller Pellnitz Architekten / von Ey Architektur
Auslober*in: Hochbauamt der Stadt Heidelberg
Ort: Friedrich-Ebert-Anlage in Heidelberg
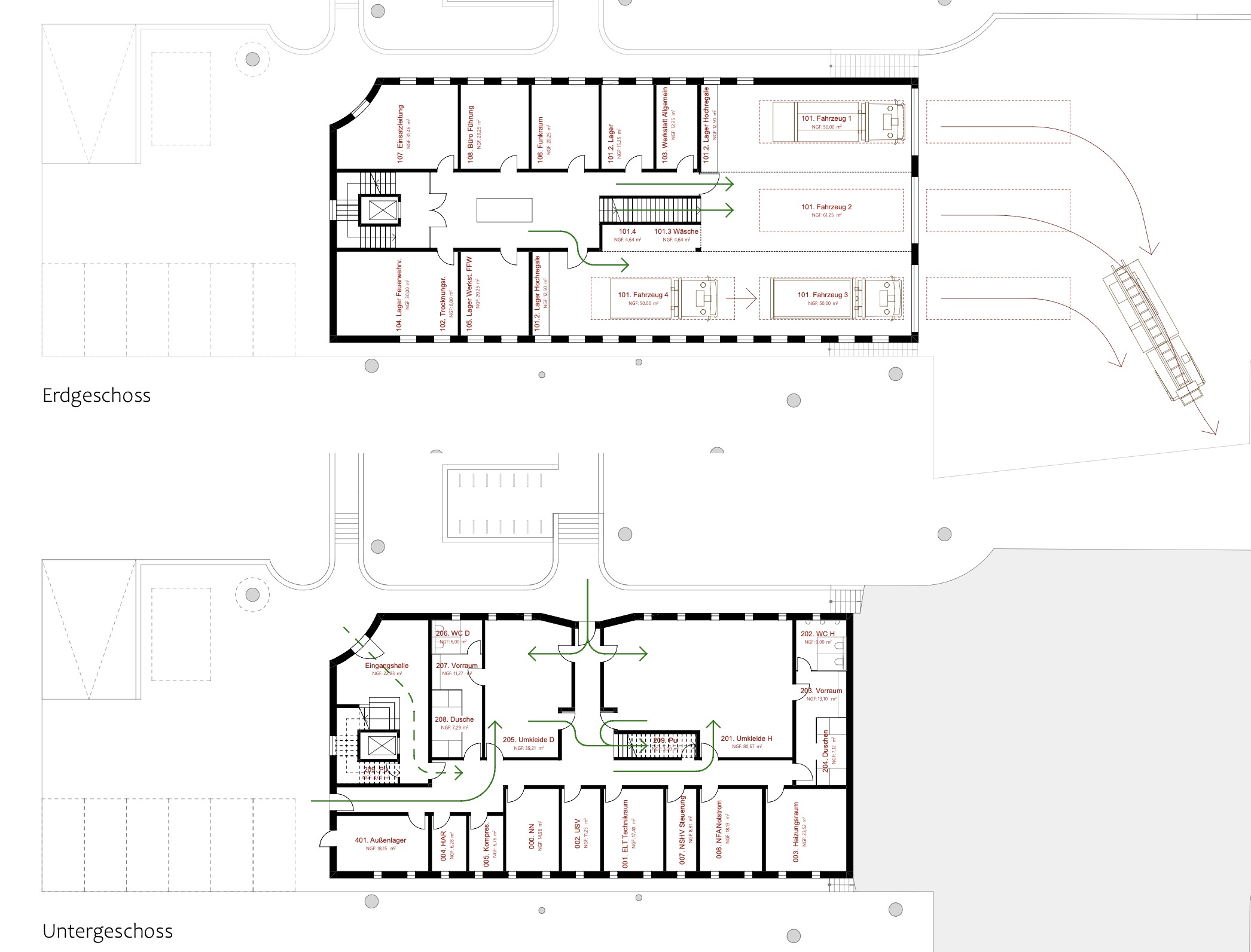
Größe: Feuerwehr 1.460 m² NUF, Wohnungen 360 m² NUF
Die neue Feuerwehr fügt sich sensibel in das herausragende Altstadt-Ensemble ein, indem das Gebäude einen steinernen, monolithischen Charakter erhält und Materialien der Altstadt wie Neckartäler Sandstein für den Sockelbereich und Ziegel aufgenommen werden. Mit seinen prägnanten Satteldächern hebt sich die Feuerwehr jedoch selbstbewusst von der umliegenden Wohnbebauung ab und verdeutlicht damit seine Funktion als wichtiges öffentliches Gebäude der Stadt. Das große Satteldach tritt in Dialog mit anderen öffentlichen Gebäuden wie der Peterskirche oder der Heuscheuer aus dem 18. Jh. und spiegelt die Bedeutung der Feuerwehr als Ausbildungsstätte mit einem großen Schulungsraum als „Haus im Haus“ wider.