


Realisierung: 2020 – 2021
Ort: Leuenberg / Höhenland
Bauherr*in: Amt Falkenberg-Höhe
Planungsleistung: LP 1-4
Größe: 580 m² BGF
Verfahren: Verhandlungsvergabe nach öffentlichen Teilnahmewettbewerb
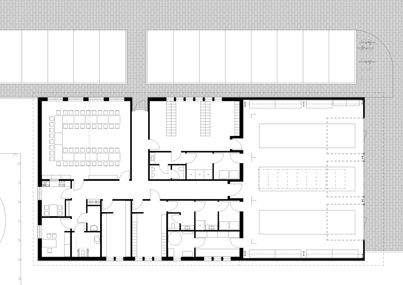
Im Ortszentrum von Leuenberg soll ein neues Feuerwehrgerätehaus für 3 Einsatzfahrzeuge mit angeschlossenem Sozialtrakt für die Freiwillige Feuerwehr entstehen. Neben den funktionalen Anforderungen stehen hier besonders das kostengünstige Bauen und Betreiben im Vordergrund. Die einfache und klare Gebäudegliederung bildet dafür die Grundlage. Der rechteckige Funktionsgebäudeteil schließt direkt in gleicher Breite an die höhere Fahrzeughalle an. Geradlinige Funktionsabläufe von den einrückenden Einsatzkräften bis zu den ausrückenden Fahrzeugen garantieren ein schnelles Ausrücken.