







Nichtoffener hochbaulicher Realisierungswettbewerb, 2023
Auslober*in: Samtgemeinde Sottrum
Ort: Am Eichkamp 12, 27367 Sottrum
Größe: ca. 2.484 m² BGF
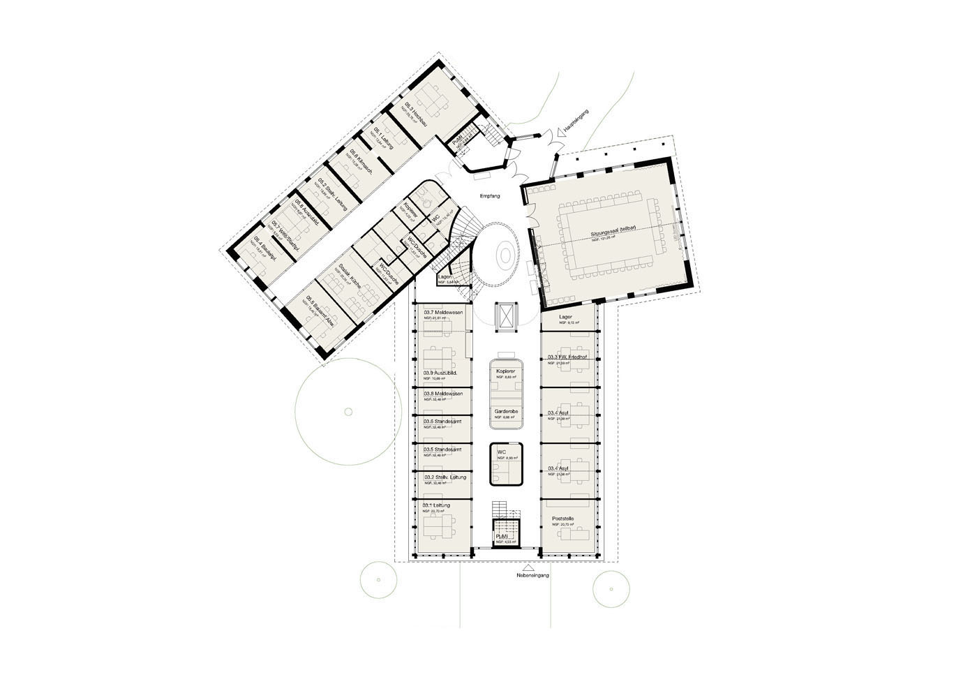
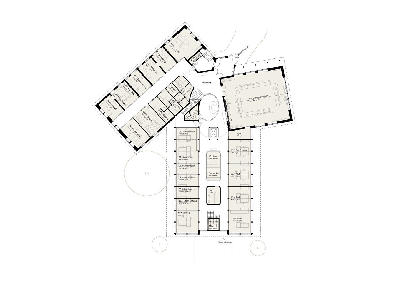
Das zweiteilig in Erscheinung tretende Bestandsgebäude wird um einen dritten, dreigeschossigen Büroriegel ergänzt. Diese solitärhafte Gebäudefigur des neuen Rathauses spielt sich frei und ver-stärkt somit seine Bedeutung als zentrales, öffentliches Gebäude im Ort. Durch die präzise Setzung des Baukörpers erhält auch der Kirchturm eine neue großzügige räumlich Fassung und wird beson-ders von Westen visuell erlebbar. Die typologische Auseinandersetzung mit dem bestehenden Rathaus und den stattlichen, historischen Ein-Dach-Häusern mit Krüppelwalm als gliedernde und ortskernbildende Bauten, wird im Erweite-rungsbau aufgenommen und weiter interpretiert. Der neue Gebäudeteil zeigt sich als eingeschossi-ges Haus mit einer prägnanten Giebelfassade mit neuem Nebeneingang. Die bestehende, charakter-volle Eingangssituation mit dem identitätsstiftenden Eingangsturm bleibt erhalten.