






Realisierung: 1999 – 2000 und 2003
Ort: Rathausstraße 1 / Steinweg 29, Gifhorn
Bauherr*in: A. W. Schütte GmbH + Co. KG
Planungsleistung: LP 1-9
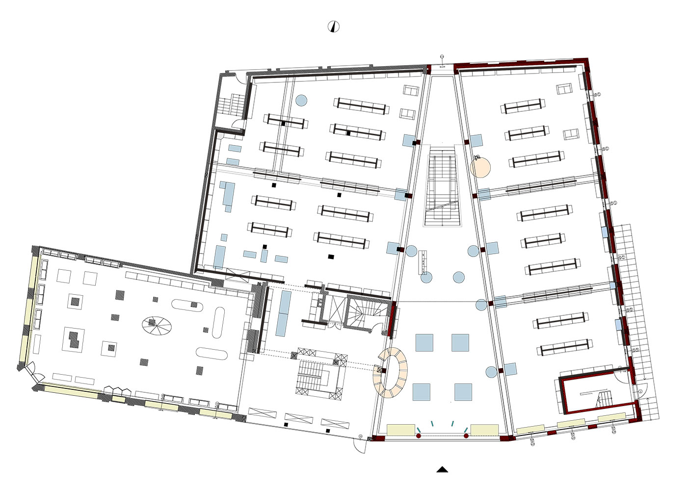
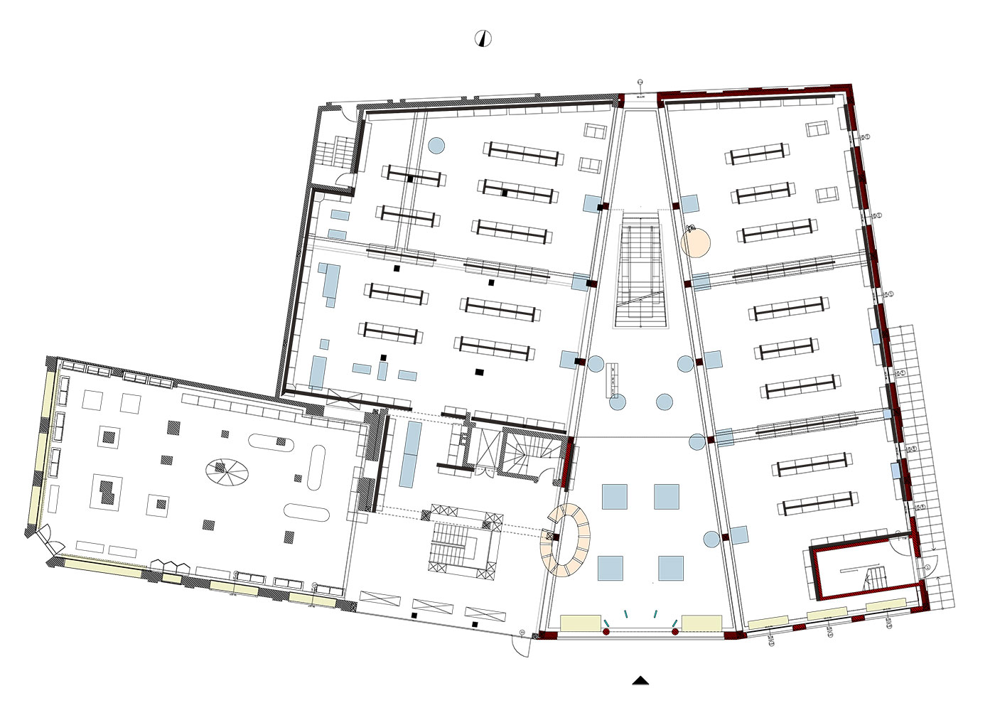
Größe: 4.100 m² BGF
Bausumme: ca. 2,2 Mio €
Dreigeschossiger Neubau, der das Stammhaus um 2000 m² erweitert, inkl. der gesamten Ladeneinrichtung und Außenraumgestaltung
Das über 150 Jahre alte Innenstadtgeschäft verdoppelte durch den Anbau seine Verkaufsfläche. Die zweigeschossige Eingangshalle bildet das neue Zentrum, verbindet Alt- und Neubau und nimmt die großzügige Treppe zum 1. Obergeschoss auf. Vor dem neuen Eingang wurde ein Platz geplant, der sich ebenso wie der Grundriss des Neubaus auf historische Gebäudelinien bezieht. Der Auftrag umfasste zusätzlich die Sanierung des Altbaus, die gesamte Einrichtung sowie den Ausbau einer Anwaltskanzlei.